Khi nào bạn nên cải tạo căn hộ? Lựa chọn phong cách gì cho phù hợp và tăng giá trị thẩm mỹ cho căn nhà? HAY sẽ giúp bạn giải đáp bằng chính không gian thực tế của căn hộ Flemington do chúng tôi cải tạo trong bài viết sau đây.
Làm mới không gian sống luôn là nhu cầu liên tục có của mỗi người vì sự ảnh hưởng trực tiếp đến thói quen sinh hoạt và tính thẩm mỹ theo thời đại. Mỗi gia chủ khi tìm đến HAY đều mang trong mình một ước mơ về tổ ấm đúng nghĩa, nơi mà mỗi người cảm thấy dễ chịu nhất mỗi khi trở về.
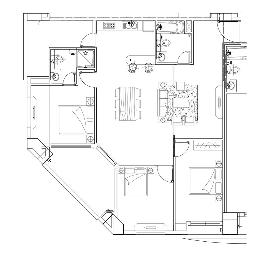
1. Tại sao phải cải tạo không gian căn hộ Flemington 3 phòng ngủ?
Theo thiết kế ban đầu, căn hộ Flemington có diện tích khoảng 95m2 bao gồm 3 phòng ngủ. Tuy nhiên, do nhu cầu sử dụng của gia chủ nhiều hơn mức hiện trạng đang có. Phòng ngủ ban đầu hẹp, thiếu ánh sáng tự nhiên, không có nhà vệ sinh bên trong nên khá bất tiện.


Một lý do nữa là căn hộ quá nhiều phòng trong khi chủ nhà chỉ sống một mình và cần thêm không gian để làm việc. Do đó, sau khi xem xét và lắng nghe mong muốn của khách hàng, kiến trúc sư HAY đã lên bản vẽ và biến căn hộ thành một phòng ngủ master rộng rãi, có WC bên trong và một phòng làm việc lớn.
2. Căn hộ Flemington sau khi cải tạo thành 1 phòng ngủ +1
Chủ sở hữu căn hộ Flemington là một người trẻ có gu thẩm mỹ cá tính, mang phong thái mạnh mẽ lịch lãm. Vì vậy, chúng tôi lựa chọn phong cách thiết kế hiện đại, lấy gam màu nâu và xám làm chủ đạo, tạo nên không gian vừa có sự cuốn hút vừa mang cảm giác tĩnh lặng để làm việc hiệu quả.

2.1. Không gian phòng khách

Phòng khách thông với khu vực bàn ăn, HAY sử dụng gam màu xám làm chủ đạo, nổi bật lên đó là sofa màu da bò thiết kế hình chữ L tối ưu không gian.

Ánh sáng đèn là yếu tố cần thiết để những không gian dùng gam màu tối trở nên có chiều sâu và không bị u ám quá. Vị trí đặt đèn trần khéo léo mà kiến trúc sư HAY áp dụng phản chiếu lên vật liệu da, gỗ tự nhiên giúp tạo cảm giác ấm áp, tươi sáng hơn cho phòng khách.

Phong cách hiện đại luôn chú trọng sự tiện lợi và tối giản. Không gian phòng khách là nơi sinh hoạt chung, thêm nữa lại gần khu bếp nên rất cần những “khoảng thở” để thoải mái hơn trong sinh hoạt hằng ngày. Đó là lý do màu sắc, vật liệu, kiểu dáng nội thất được tiết chế tối thiểu trong khu vực này.

2.2. Cải tạo Không gian bếp căn hộ
Như đã nói, để không gian có thêm những khoảng trống thông thoáng, HAY đã cải tạo bằng cách thiết kế bếp chữ L để tận dụng tối đa không gian, phần quầy bar nối liền bếp và đặt cạnh bàn ăn.


Màu đen, xám và màu gỗ là 3 màu chính được sử dụng giúp bếp sạch sẽ hơn và phù hợp với cá tính mạnh mẽ của gia chủ.
Điểm nhấn để khu bếp thêm sang trọng chính là phần phản chiếu ánh sáng đèn trên mặt đá marble tia chớp vàng ấn tượng.

HAY sử dụng ván gỗ công nghiệp cho tủ bếp và quầy bar với ưu điểm bền, nhẹ, chống ẩm, chống xước tốt. Gỗ công nghiệp cũng dễ thi công và có nhiều màu sắc phù hợp với đa dạng không gian.
2.3. Không gian phòng ngủ master

Phòng ngủ master được mở rộng hơn so với hiện trạng ban đầu. Ngoài phòng ngủ lớn thiết kế thông minh với kệ ẩn dưới chân giường còn có thêm tủ quần áo kịch trần tối ưu công năng.

Nội thất tối giản kết hợp gam màu trầm trung tính mang lại cảm giác an tĩnh, riêng tư cho không gian nghỉ ngơi, thư giãn của gia chủ.

Phòng master vẫn theo gam màu xám, đen và màu ván gỗ, tận dụng ánh sáng tự nhiên từ cửa sổ và cửa ra vào lô gia giúp căn phòng được mở rộng và thông thoáng hơn.
2.4. Cải tạo Không gian làm việc căn hộ
Được cải tạo từ 2 phòng ngủ nhỏ ban đầu, không gian làm việc vừa có sự riêng tư vừa cởi mở tạo điều kiện thoải mái khơi nguồn sáng tạo hiệu quả.

Ánh sáng rất cần thiết trong phòng làm việc, do đó HAY đã khéo léo bố trí đèn và vị trí các cửa sổ, cửa ra vào lô gia quanh căn phòng. Điều này vừa tốt cho sức khỏe gia chủ vừa thuận tiện có thể ra ngoài hít thở không khí mỗi khi làm việc căng thẳng.
Đặc biệt, một ý tưởng không còn lạ lẫm nhưng vẫn rất được yêu thích trong phòng ngủ hay phòng làm việc đó là bay window – vị trí ngồi hoặc tựa lưng đọc sách cạnh cửa sổ đầy thơ mộng. HAY cũng đã sử dụng để tăng thêm sự cân bằng giữa làm việc và thư giãn trong cùng không gian.



Tất cả kệ trang trí, kệ sách đặt theo hình chữ U dọc tường đều được thiết kế dạng âm tường và kịch trần để tiết kiệm không gian, tạo nên những khoảng trống mang lại cảm giác giãn dễ chịu khi làm việc.
3. Tại sao bạn nên chọn HAY Decor làm đơn vị thiết kế thi công nội thất?
Với kinh nghiệm thực tế đã hoàn thiện nhiều công trình dự án nhà ở, văn phòng làm việc, quán cafe, resort,… HAY tự tin mang đến cho bạn dịch vụ uy tín với các lợi thế sau đây:
- Đội ngũ kiến trúc sư trẻ, nhiều ý tưởng sáng tạo, luôn lắng nghe và mang đến những gợi ý phù hợp với mong muốn của bạn nhất có thể.
- Có nhà xưởng rộng hơn 2000m2, sở hữu nhiều máy móc hiện đại, đội ngũ kỹ thuật tay nghề cao để sản xuất mọi món đồ từ bản vẽ ra thực tế chính xác.
- Giám sát chặt chẽ từng khâu sản xuất – lắp đặt sao cho chuẩn chỉnh và đúng tiến độ thực hiện.
- HAY là đơn vị thiết kế – sản xuất – thi công nên giúp Quý khách hàng tối ưu chi phí và thời gian hoàn thiện khi không phải thực hiện qua nhiều khâu trung gian.
- Chúng tôi luôn có ưu đãi đặc biệt cho Quý khách hàng lựa chọn dịch vụ thiết kế thi công trọn gói theo từng thời điểm cụ thể.


Hình ảnh thi công tại căn hộ Flemington 95m2, 1 phòng ngủ + 1 và video hoàn thiện căn hộ.
Kết: HAY vừa giới thiệu đến bạn diện mạo mới của căn hộ Flemington sau khi được cải tạo bởi chúng tôi. Mỗi không gian sống chỉ trở nên có giá trị thực sự khi đáp ứng đủ và đúng nhu cầu sử dụng của gia chủ. Do đó, HAY luôn lắng nghe để hiểu rõ mong muốn của từng khách hàng và hiện thực hóa một cách tốt nhất.
Vui lòng liên hệ với chúng tôi khi bạn cần tư vấn ý tưởng hoặc muốn biết thêm thông tin chi tiết ưu đãi.
Hotline: 0984 80 99 22
Showroom: số 77 Quốc Hương, Thảo Điền, TP.Thủ Đức.




